Casa de campo































Detalles destacados
Nos complace presentar en el mercado esta espléndida villa con un auténtico sabor español, situada en una de las zonas más famosas y solicitadas cerca de Santa Pola y Elche.
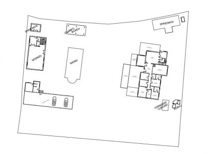
En una parcela de 5.000 metros cuadrados se encuentra esta magnífica villa, dispuesta en una sola planta de forma intercalada. Construida en 1983, la casa fue completamente reformada en los años 90. La villa cuenta con 389 metros cuadrados construidos, incluyendo una terraza cubierta de 60 metros cuadrados. Dispone de 5 habitaciones, cuatro baños, amplios salones, cocina y varias áreas reubicadas.
En la misma parcela, se ha construido una casa prefabricada con tres dormitorios, cocina y dos baños.
Junto a la piscina, encontramos una zona de servicio equipada con baño propio para cambiarse.
El garaje tiene capacidad para 8 coches y cuenta con puertas eléctricas.
Adyacente a la casa, se puede acceder a un maravilloso edificio diseñado para celebrar los mejores momentos de tu vida.
Características y calidades
Referencia
78
Tipo Operación
Vender
Tipo de Propiedad
Chalet
Zona / Ciudad
Perleta / Elche pedanias
Superficie Útil
389 m2
Superficie Construida
946 m2
Conservación
Buen estado
Habitaciones
5
Baños
4
Aseos
2
Antigüedad
1983
Número de plazas de parkings
8
Orientación
Sureste
Superficie parcela
5000 m2
Superficie terraza
70 m2
Tipo Exterior
Todo exterior
Tipo Cocina
Cocina Office - Equipada
Agua Caliente
Central con contador individual
Carpintería Exterior
Aluminio
Tipo Suelo
Baldosa
Vistas
A la piscina
Distancia al mar
2 Km.
Certificación energética
Villas Exclusivas Bonalba Green — Desde €460.000
- 3
- 2
- 247 m2