Chalet en Altea – Zona Altea la nova

1.137.500 €
5
6

Detalles destacados

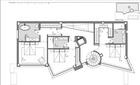
Residencial lleno de luz con grandes espacios interiores, arquitectura única y un entorno natural con una vista panorámica del Mar Mediterráneo y al skyline de Benidorm. Un complejo residencial cerrado, con viviendas de arquitectura de vanguardia, independientes entres si, dónde cada una de ellas tiene un diseño exclusivo que las convierte en una pieza única. Las casas destacan por su luz natural y sus grandes espacios interiores, con distribuciones de 5 dormitorios y 6 baños, cocina abierta, salones y comedores de varias formas, terraza, piscina, barbacoa, garaje cerrado y ascensor. Planta baja – Garaje para 3 coches, dormitorio para dama de servicio con baño completo y armario empotrado. Con el ascensor subimos en la primera planta donde se encuentra un salón con las ventanas que dan la luz natural en toda la vivienda. Cocina abierta estilo moderno totalmente equipada. Una terraza de 97 m2 con su piscina privada y vistas panorámicas al Mar Mediterráneo, Skyline de Benidorm y ciudad Altea. En la zona de la cocina tenemos también un aseo para huéspedes. Siempre en la misma planta encontramos un dormitorio con armarios empotrados y baño en suite. Subimos con el ascensor en la ultima planta. En la ultima planta encontramos tres dormitorios dobles cada uno con su baño privado, armarios empotrados. Dormitorio 1 – vestidor con armarios, baño con a ducha y doble lavabo. Dormitorio 2 – armarios empotrados, baño con ducha y doble lavabo. Dormitorio 3 – armarios empotrados, baño con bañera y vestidor. Total construido – 417m2 Vivienda – 270m2 Terraza – 97,07m2 Otros – 53m2 Tambien tenemos un jardín pequeño decorativo. Estilo – moderno, decoracion y muebles en el precio incluido. Posee un enlace directo con la autopista, a 10 Km de Benidorm, y apenas 50 Km del aeropuerto de Alicante y 100 km del de Valencia. La pintoresca villa costera de Altea nos permite disponer de todos los servicios y ocio de una gran ciudad y, al mismo tiempo, disfrutar de un mirador abierto a la naturaleza y al azul intenso del mar Mediterráneo, inmersos en un entorno natural, que también constituye el escenario perfecto para una escapada, unas relajantes vacaciones, o por qué no, ser afortunados y convertirlo en nuestro hogar. Sus013.
Terraza
Armarios Empotrados
Trastero
Aire Acondicionado
Piscina Comunitaria
Jardín
Zonas Verdes

Características y calidades

Referencia

103

Tipo Operación

Vender

Tipo de Propiedad

Chalet

Zona / Ciudad

Altea la nova / Altea

Superficie Útil

270 m2

Superficie Construida

417 m2

Conservación

Ninguno

Habitaciones

5

Baños

6

titulo-caracteristica

2022

Número de plazas de parkings

1

Certificación energética

Villas Exclusivas Bonalba Green — Desde €460.000

Vive donde la arquitectura de vanguardia se funde con la naturaleza, el mar y un campo de golf de primera. Descubre estas villas de diseño excepcional, pensadas para quienes buscan confort, estilo y un entorno verdaderamente privilegiado.
460.000 €

🏡 Casas en Gran Alacant – Últimas 4 disponibles, entrega en junio 2026

Descubre estas exclusivas viviendas de obra nueva en Gran Alacant, a tan solo unos minutos de la playa de Carabassí, del centro comercial, colegios y todos los servicios necesarios para vivir cómodamente todo el año.
312.000 €

Adosado de obra nueva en Gran Alacant – 2024/2025

Le presentamos esta vivienda adosada construida en 2024/2025 y nunca habitada, situada a tan solo 2 km del mar en Gran Alacant.
260.000 €