Chalet en Altea – Zona Altea la nova

1.786.250 €
4
1

Detalles destacados

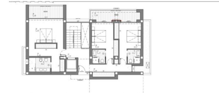
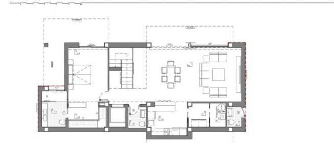
En la Sierra de Altea, con unas impresionantes vistas al mar, se encuentra esta magnifica Villa, minimalista de nueva construcción, con las mejores calidades y un diseño perfecto. Villa está distribuida en tres alturas, en la planta alta dispone de un garaje para dos coches y el hall de entrada que nos comunica con el resto de la vivienda. En la planta media se encuentran tres de los cuatro dormitorios de esta vivienda, dos dormitorios principales y dos dormitorios adicionales. El dormitorio principal de esta planta tiene la cama situada para disfrutar de las maravillosas vistas al mar, tiene acceso a terraza privada y dispone de baño en suite y vestidor. Los otros dos dormitorios tienen también cada uno su baño en suite, amplios armarios roperos y comparten terraza. Además de tener armarios adicionales en el pasillo de acceso a los mismos. La planta principal se distribuye en dos zonas, delimitadas por el hall y el núcleo de la escalera. En un lado tenemos el cuarto dormitorio con baño en suite, vestidor y acceso a la terraza principal con una zona de porche. La otra zona alberga un aseo para invitados, cocina abierta al comedor con una isla central con zona de fuegos y de desayuno, comedor con acceso al porche, una luminosa sala de estar. Tres espacios abiertos, inundados por la luz del mediterráneo y sobre todo comunicados con el exterior de la vivienda, con sus varios porches, aseo de cortesía exterior, amplia terraza y una piscina con un lateral en sinfín para no perder el mar de vista ni un sólo instante. Villa está equipada con ascensor, sistema de seguridad, suelo radiante, aire acondicionado, iluminación técnica, zonas ajardinadas. Diseño, equipamiento, calidad y unas impresionantes vistas al mar le esperan en Altea, Costa Blanca Norte. Grandes villas de lujo con una increíble ubicación, junto al Altea Club de Golf, cerca de la playa de la Olla y el Puerto Deportivo Campomanes, a tan sólo 8 Km del centro urbano del municipio de Altea y junto a Altea la Vella, tradicionalmente conocidos por su calidad de vida, servicios y oferta cultural y artística, dónde se pueden realizar diversidad de actividades deportivas y culturales, además de disfrutar de una gran variedad de restaurantes con una oferta gastronómica inigualable. Cuenta también con acceso directo desde la salida de la autopista del Mediterráneo AP7-64. HB205.
Terraza
Aire Acondicionado
Zonas Verdes
Armarios Empotrados
Piscina Comunitaria
Trastero
Jardín

Características y calidades

Referencia

65

Tipo Operación

Vender

Tipo de Propiedad

Chalet

Zona / Ciudad

Altea la nova / Altea

Superficie Útil

400 m2

Superficie Construida

517 m2

Conservación

Ninguno

Habitaciones

4

Baños

6

Antigüedad

2021

Número de plazas de parkings

1

Superficie parcela

1252 m2

Certificación energética

Se VENDE local comercial en Santa Pola, puerto deportivo

100.000 €

Piso en Alicante (Altozano)

204.000 €

Villas Exclusivas Bonalba Green — Desde €460.000

Vive donde la arquitectura de vanguardia se funde con la naturaleza, el mar y un campo de golf de primera. Descubre estas villas de diseño excepcional, pensadas para quienes buscan confort, estilo y un entorno verdaderamente privilegiado.
460.000 €