Exclusivo adosado en venta



















Detalles destacados
Presentamos una oportunidad única para adquirir uno de los exclusivos adosados de dos dormitorios disponibles en la primera fase de un desarrollo residencial privado en Desert Springs Resort, Almería.
Estas viviendas están diseñadas en torno a una piscina comunitaria y jardines paisajísticos, ofreciendo un entorno tranquilo y elegante.
🏡 Características de la propiedad:
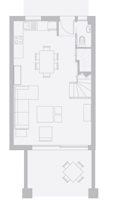
Superficie construida: 96 m²
Terraza cubierta: 11 m²
Solárium privado: 33 m²
Dormitorios: 2
Baños: 2 (en suite)
Precio de venta: €290.000
✨ Detalles destacados:
Diseño contemporáneo que maximiza la luz natural.
Cocina de concepto abierto con encimeras de ‘Silestone’ y electrodomésticos integrados.
Salón-comedor con acceso directo a la terraza cubierta.
Dormitorios con armarios empotrados con espejos.
Baños modernos con acabados de alta calidad.
Aire acondicionado y ventanas de doble acristalamiento.
Plaza de aparcamiento privada.
🌿 Entorno y estilo de vida:
Ubicado en el prestigioso Desert Springs Resort, los residentes disfrutan de acceso a instalaciones deportivas de primer nivel, incluyendo un campo de golf de 18 hoyos y un campo de críquet reconocido internacionalmente. El resort también ofrece restaurantes, club social y actividades para toda la familia.
La ubicación privilegiada permite disfrutar de un estilo de vida activo y relajado, con fácil acceso a las playas de Vera y Mojácar, así como a los aeropuertos de Almería, Murcia y Alicante.
Características y calidades
Referencia
208
Tipo Operación
Vender
Tipo de Propiedad
Adosado
Zona / Ciudad
1 DESERT SPRINGS RESORT / Cuevas del Almanzora
Superficie Útil
96 m2
Superficie Construida
105 m2
Conservación
Entrar a vivir
Habitaciones
2
Baños
2
Aseos
1
Antigüedad
2024
Nº de plantas
3
Orientación
Este Oeste
Superficie terraza
33 m2
Tipo Exterior
Exterior
Fachada
Estructura Mixta
Tipo Cocina
Americana - Equipada
Tipo Calefacción
Por conducto con máquina instalada
Agua Caliente
Aerotermia
Carpintería Interior
Aerotermia
Carpintería Exterior
Aluminio-Madera
Tipo Suelo
Cemento Pulido
Vistas
Al Paisaje
Distancia al mar
9 Km.
Regimen
Libre
Certificación energética
Villas Exclusivas Bonalba Green — Desde €460.000
- 3
- 2
- 247 m2
🏡 Casas en Gran Alacant – Últimas 4 disponibles, entrega en junio 2026
- 3
- 3
- 96 m2