Villa de Lujo en Desert Springs: Elegancia, Confort y Vistas Inigualables








































Detalles destacados
Villa de Lujo en Desert Springs: Elegancia, Confort y Vistas Inigualables
Te presentamos una impresionante villa de tres dormitorios ubicada en una posición privilegiada dentro del exclusivo complejo de golf Desert Springs. Diseñada para disfrutar del lujo y la tranquilidad, esta propiedad combina un estilo moderno con vistas excepcionales al hoyo 15 del campo de golf Indiana y las majestuosas sierras circundantes.
Características Destacadas de la Villa
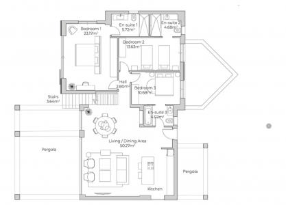
Superficie construida: 431 m² sobre una amplia parcela de 725 m².
Superficie útil: 250 m².
Terrazas y solárium: Espacios al aire libre que suman 159 m², perfectos para relajarse o disfrutar de las impresionantes vistas.
Piscina privada: Piscina de 8 x 4 metros con vistas directas al campo de golf.
Diseño moderno y funcional:
Dormitorio principal con acceso directo a la terraza y piscina.
Tres dormitorios, cada uno con baño en suite, para mayor comodidad y privacidad.
Espaciosa zona de recepción con más de 93 m² de espacio abierto que conecta las áreas internas y externas, ideales para el estilo de vida mediterráneo.
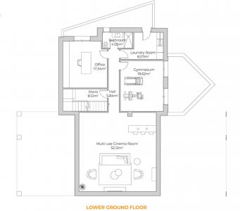
Planta baja multifuncional: Sala de juegos, cine, oficina, lavadero y aseo adicional.
Equipamiento y Acabados Premium
Cocina de alta gama con electrodomésticos integrados.
Armarios empotrados en todos los dormitorios.
Sistema de doble acristalamiento para aislamiento acústico y térmico.
Paneles fotovoltaicos y sistema de ventilación automática para mayor eficiencia energética.
Aire acondicionado frío/calor independiente en cada habitación.
Puerta blindada y sistema de alarma para máxima seguridad.
Exteriores de Ensueño
Jardín privado cuidadosamente diseñado con barbacoa integrada.
Amplias verandas sombreadas que maximizan el confort en cualquier estación.
Solárium ideal para disfrutar del sol y las vistas panorámicas.
Ubicación Privilegiada
Campo de golf: A tan solo 100 metros.
Playas: A 9 km de distancia.
Servicios cercanos: Supermercados y opciones de ocio a solo 6 km.
Aeropuertos:
Alicante: 206 km.
Murcia: 137 km.
Esta villa ha sido diseñada para aquellos que buscan lujo, comodidad y un estilo de vida exclusivo en uno de los destinos más privilegiados del Mediterráneo.
¡Descubre tu nuevo hogar en Desert Springs!
Características y calidades
Referencia
190
Tipo Operación
Vender
Tipo de Propiedad
Villa de Lujo
Zona / Ciudad
Desert Spring Golf / Cuevas del Almanzora
Superficie Útil
250 m2
Superficie Construida
431 m2
Conservación
Obra Nueva
Habitaciones
3
Baños
4
Antigüedad
2024
Nº de plantas
3
Orientación
Sureste
Superficie parcela
725 m2
Superficie terraza
159 m2
Tipo Exterior
Exterior
Fachada
Estructura Mixta
Tipo Cocina
Con isla - Equipada
Tipo Calefacción
Por conducto con máquina instalada
Agua Caliente
Aerotermia
Carpintería Interior
Madera
Carpintería Exterior
Doble Ventana
Tipo Suelo
Gres porcelánico
Vistas
A la piscina
Distancia al mar
9 Km
Regimen
Libre
Certificación energética
Villas Exclusivas Bonalba Green — Desde €460.000
- 3
- 2
- 247 m2