Vistas al mar impresionantes
























Detalles destacados
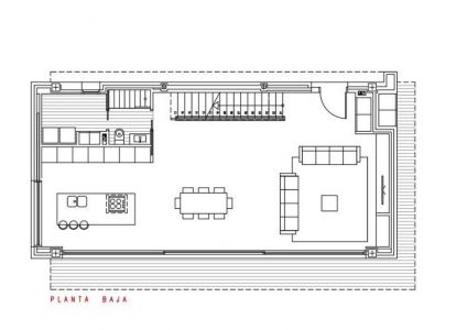
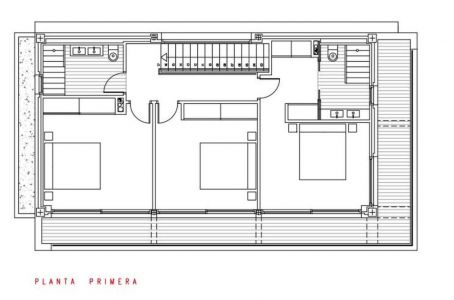
Para apreciar las vistas panorámicas al mar de esta ubicación excepcional, mantener el frente abierto a ellas era simplemente lógico. En el salón, hay 3 ventanales deslizantes de tamaño máximo de casi 4 metros cada uno para disfrutar al máximo de las vistas. Además, la zona de la piscina está abierta hacia el mar con una pared de cristal. Entre la villa y la piscina, hay una magnífica terraza soleada con chimenea, todo acabado en baldosas porcelánicas para uso exterior. En el primer piso, una amplia suite principal con vestidor y baño en suite. Dos habitaciones de invitados tamaño king y un baño completo completan un diseño sencillo pero extraordinario. Vive en el lujo, porque la vida es lujo. Nos vemos pronto en Cala D’Or.
Tamaños:
Superficie construida total: 350 m²
Tamaño de la parcela: 800 m²
Superficie útil interior total: 241 m²
Sótano: 100 m²
Área del salón: 63,3 m²
Dormitorio principal: 23,3 m²
Piscina: 9 x 3,5 m
Terrazas exteriores: 200 m²
Distancias:
Mar: 300 metros
Puerto de Campello: 8 km
Villajoyosa: 11 km
Aeropuerto de Alicante: 32 km
Características y calidades
Referencia
24
Tipo Operación
Vender
Tipo de Propiedad
Chalet
Zona / Ciudad
Pueblo Acantilado-Lanuza / El Campello
Superficie Útil
241 m2
Superficie Construida
350 m2
Conservación
Obra Nueva
Habitaciones
3
Baños
4
Aseos
4
Antigüedad
2024
Número de plazas de parkings
2
Nº de plantas
2
Orientación
Suroeste
Superficie parcela
800 m2
Superficie terraza
200 m2
Tipo Exterior
Mixto
Fachada
Cemento
Tipo Cocina
Con isla - Equipada
Tipo Calefacción
Eléctrica bajo consumo
Agua Caliente
Termo Eléctrico
Carpintería Interior
Lacado blanco
Carpintería Exterior
Doble Ventana
Tipo Suelo
Gres porcelánico
Vistas
Al mar y montaña
Distancia al mar
300 Metros
Certificación energética
Villas Exclusivas Bonalba Green — Desde €460.000
- 3
- 2
- 247 m2